













Schicke 2,5-Zimmer-Wohnung mit Loggia und Aufzug – gut vermietet
Objektart: Wohnung
Adresse: 71679 Asperg
Objektnummer: 526001
Baujahr: 2001
Kaufpreis: € 227.500,–
Käuferprovision: 3,57
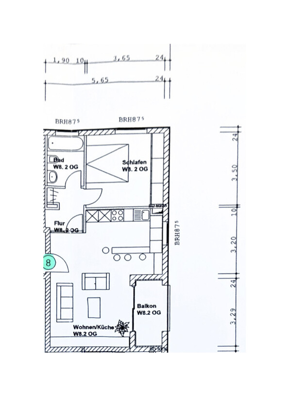
Wohnfläche: 51 m2
Zimmer: 2
Energieausweistyp: Bedarfsausweis, Baujahr lt. Energieausweis: 2001, Endenergiebedarf: 71.40 kWh/(m2a), wesentl. Energieträger: Gas, Energieeffizienzklasse: B

Ihr Ansprechpartner:
Markus Schwarz
Immobilien Rienhardt Illingen
Tel. (07042) 2731 600
m.schwarz@immo-rienhardt.de
Lage
Asperg ist eine beliebte Stadt mit ca. 13.600 Einwohnern im Landkreis Ludwigsburg am Fuße des Hohenasperg. Mittelalterliches, romantisches und vom Weinbau inspiriertes Flair prägen die Innenstadt, die ein Teil der Deutschen Fachwerkstraße ist. Die gut ausgebaute Infrastruktur, die Nähe zur großen Kreisstadt Ludwigsburg und die landschaftlich reizvolle Umgebung machen Asperg zu einem sehr begehrten Wohnort. Das in eine gepflegte Nachbarschaft eingebettete Mehrfamilienhaus befindet sich im Südwesten des Ortszentrums. Viele wichtige Einrichtungen des alltäglichen Bedarfs sind fußläufig erreichbar. Kindergärten, Grundschulen und weiterführende Schulen sind in Asperg gut zu Fuß, mit dem Fahrrad oder mit öffentlichen Verkehrsmitteln zu erreichen. Der S-Bahnhof von Asperg ist ca. 1,8 km entfernt und auch mit dem Linienbus 433 erreichbar. Die B27 sowie die Autobahnauffahrten Ludwigsburg-Nord und Ludwigsburg-Süd sind etwa zehn Autominuten entfernt. Ob Karlsruhe, Heilbronn oder Stuttgart – Ihr Ausgangspunkt bietet Ihnen hervorragende Anbindungen.Beschreibung
Die Wohnung befindet sich im zweiten Obergeschoss eines im Jahr 2001 erbauten, ruhigen Mehrfamilienhauses in Asperg. Der Zugang erfolgt bequem über einen Aufzug, der direkt vom Erdgeschoss bzw. Tiefgarage bis zur Wohnebene führt. Auf rund 51 m² Wohnfläche verteilen sich ein heller Wohn-Essbereich mit integrierter Küche und Zugang zur Loggia, ein Schlafzimmer sowie ein Badezimmer mit Badewanne, Dusche, Waschbecken und WC. Die Raumaufteilung ist funktional, gut proportioniert und lässt sich sowohl von Singles als auch von Paaren hervorragend nutzen. Die Wohnung ist seit Mai 2020 zuverlässig vermietet. Zum Juli 2025 wurde die Kaltmiete auf 570 Euro pro Monat angepasst. Der bestehende Mietvertrag ist unbefristet und ohne Staffel- oder Indexregelung ausgestaltet. Die Wohnung wird im vermieteten Zustand verkauft. Die Einbauküche steht im Eigentum der Mieterin.Ausstattung
Die Ausstattung der Wohnung erfüllt in vielen Punkten die Erwartungen an ein zeitgemäßes, pflegeleichtes Zuhause. Die Böden sind überwiegend mit Laminat sowie Fliesen belegt und unterstreichen den wohnlichen, zurückhaltenden Charakter der Räume. Das Badezimmer ist gepflegt und voll ausgestattet, mit Waschbecken, Dusche, Badewanne und WC – funktional und in gutem Zustand, wenn auch nicht modernisiert. Ein Aufzug führt bequem bis auf die Wohnebene und unterstreicht die barrierearme Ausrichtung des Gebäudes. Zur Wohnung gehören außerdem ein eigener Kellerraum im Untergeschoss sowie ein fest zugeordneter Stellplatz in der Tiefgarage – ein Komfort, der sowohl Eigennutzer als auch Mieter zu schätzen wissen. Die gemeinschaftlich genutzte Waschküche im Untergeschoss rundet das Angebot ab. Besonders hervorzuheben ist die Heiztechnik: Die moderne Gaszentralheizung mit neuem Wärmeerzeuger aus dem Jahr 2024 sorgt nicht nur für zuverlässige Wärme über eine Fußbodenheizung, sondern ermöglicht auch eine hervorragende Energieeffizienz. Der vorliegende Bedarfsausweis weist einen Endenergieverbrauch von lediglich 71,4 kWh/(m²a) aus und bestätigt die Energieeffizienzklasse B – ein starkes Argument im Hinblick auf Nachhaltigkeit und Nebenkostenkontrolle. Das monatliche Hausgeld beträgt deswegen auch nur ca. 250 Euro. Darin enthalten sind 170 Euro umlagefähige Betriebskosten, 48 Euro nicht umlagefähige Kosten sowie 32 Euro Rücklagenzuführung.Sonstiges
Diese Angaben sollen Ihnen zur Erstinformation dienen. Sehr gerne stellen wir Ihnen ein ausführliches Exposé mit Detailangaben, Bildern, Grundrissen und Adresse per Post, Fax oder E-Mail zur Verfügung. Wir bitten um Ihr Verständnis, dass wir hierzu Ihre vollständige Adresse sowie Ihre Telefonnummer benötigen. Wir werden Ihre Daten selbstverständlich vertraulich behandeln und nicht zu sonstigen Werbezwecken nutzen. Wir stehen Ihnen gerne für einen Besichtigungstermin zur Verfügung und freuen uns auf Ihre Nachricht.Grundriss
- Exposé anfordern
- Nächstes Angebot: Schöne 3-Zimmer-Wohnung in Ludwigsburg-Eglosheim
- Vorheriges Angebot: 2-Zimmer Wohnung in Ludwigsburg-West
- Immobilien
